nuckolls.bob(at)aeroelect Guest
|
Posted: Fri Dec 16, 2011 7:11 am Post subject: Use of non-aviation Ford-style regulators |
|
|
Paul Millner wrote:
Note that it can be dangerous to use non-aviation Ford-type regulators in our airplanes. When the alternator half of the master switch is turned off, the regulator will allow the alternator to go into a voltage runaway mode, and that overvoltage will not be controlled by your overvoltage relay (since the field current is flowing via a separate path, directly from the alternator). The overvoltage condition can cook your avionics and battery.
Even if you don't turn off the alternator half of the master switch, if your separate overvoltage relay trip for any reason with such a regulator installed, that, ironically, will trigger the voltage runaway scenario.
Paul
At 07:02 PM 12/15/2011, you wrote:
--> AeroElectric-List message posted by: David <ainut(at)knology.net>
Uh oh. What's the protection for this? I'm using not a Ford, but a smaller, denser, lighter Japanese alternator with same output.
David Merchant
Man! I've not had occasion to lift the lid on this
pot of stew since I owned the Benton Airpark (1K1)
22 years ago.
Paul's admonition arises from the fact that SOME
solid state replacements for the original Ford
electromechanical regulators do not conform to the
form, fit and function of those regulators. As installed
first on automobiles the Ford style regulator was
configured thusly:
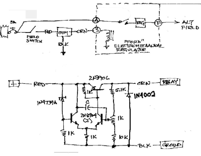
[img]cid:.0[/img]
The regulator contained two "relay" like devices wherein
one relay was the voltage regulator and the second was
used as an ON-OFF control of field excitation. The
field relay sensed a DC voltage on the alternator's
"N" terminal (y-wound stator center tap) and would
automatically excite an alternator as soon as the
engine was started and the alternator was demonstrated
to be in motion. This all happened through a tiny
excitation current that would flow through the
alternator warning light bulb into the regulator's
"I" or indicator terminal.
Failure of this light bulb led to a lot of regulators
and alternators being swapped out as mechanics who
did not understand the system tried to get their
customer's car back on the road. Later systems
added a resistor across the lamp to make sure that
the alternator would still come on line even if the
bulb were burned out. This is the root-system from
which Cessna's alternators evolved.
Cessna chose to run their field supply voltage right
into the "A" terminal and control the field supply
relay directly with alternator field switch controlling
the "S" terminal. In later years, the OV protection
module (first proposed by yours truly) was inserted
between the alternator field switch and the "S" terminal.
[img]cid:.1[/img]
So much for the history. In later years, solid state
replacements with the same A, S, I and F terminal
markings were crafted where the S-terminal was no
longer used for field control but for BUS VOLTAGE
SENSING. When one drops one of these regulators into
an automobile, the system still performs in a useful
manner. When dropped into a Cessna, opening the field
control side of the split master switch deprived the
regulator of control information causing the alternator
to full-field . . . i.e. OV runaway.
I'm not sure that ALL solid state drop-ins for a
Ford regulator behave in this manner . . . but some
do. Been there, done that on one of my rental fleet
airplanes. But if "Ford-style" regulators are wired
per recommendations in the Z-figures (A and S terminals
tied together) there is no risk for experiencing the
design induced runaway condition.
Bob . . .
| | - The Matronics AeroElectric-List Email Forum - | | | Use the List Feature Navigator to browse the many List utilities available such as the Email Subscriptions page, Archive Search & Download, 7-Day Browse, Chat, FAQ, Photoshare, and much more:
http://www.matronics.com/Navigator?AeroElectric-List |
|
| Description: |
|
| Filesize: |
100.93 KB |
| Viewed: |
1069 Time(s) |

|
| Description: |
|
| Filesize: |
53.56 KB |
| Viewed: |
1069 Time(s) |

|
|
|