 |
Matronics Email Lists Web Forum Interface to the Matronics Email Lists
|
| View previous topic :: View next topic |
| Author |
Message |
nuckolls.bob(at)aeroelect Guest
|
Posted: Tue Feb 24, 2015 10:38 am Post subject: Having several issues with my installation |
|
|
| Quote: | Here are the issues;
While the plane is shut off or running, if you turn on the AeroLED strobes, the TACH misreads or flags. If you add the NAV lights, it gets worse.
IF you turn on the LED landing light, the COMM 1 breaks squelch.
IF you key the mic for either radio, the fuel indicators begin to drop. When you release the mic, they regain.
Called AeroLED and Dean wanted to basically sell me new Nav/Strobe lights, but didn't offer a solution to my existing lights. |
Which suggests to me that they KNOW some things about
the lights you have . . . that may have been 'fixed'
in their current products.
| Quote: | | Garmin has some G3Xperts that can offer assistance, but it's tough to get them on the phone. |
They would be in no better position to offer assistance
than any of us here on the List. It's like an art
master trying to do remote diagnosis on another
individual's problems with color, textures, paints,
etc. etc. without having been involved in the effort
from square-one and without actually being able to
see/smell/touch or have detailed knowledge of
the original design goals . . . or lack thereof.
| Quote: | I'm at my wits end!!!! Everything I know about avionics, I've learned in the last 3 months, and I don't like it.
|
Understand. You've been sand-bagged with a realization
of how much you don't know about what is not yet known.
| Quote: | | I'm looking for any good advice that someone can offer. Please understand my ignorance and speak to me like a third grader. |
Without having a detailed schematic and knowledge of
the mechanical layouts, it's more than a little
difficult. Being a composite airplane makes it
more problematic yet.
The strongest odds are in favor of a poorly
architectured ground system. You spoke to a
constellation of wires in the ground system
that give an initial impression of 'ground
loop city'.
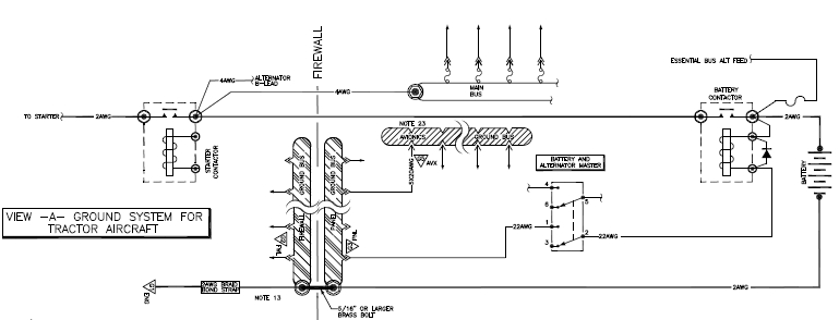
Figure Z-15 from the 'Connection illustrates
some of the common pitfalls
http://tinyurl.com/6w87rvb
and suggestions for crafting a 'clean' ground
system.
[img]cid:.0[/img]
The symptoms you described MAY NOT have root
cause in your ground system architecture . . . but
unless the ground system was initially crafted
with the simple pitfalls in mind, then one cannot rule
out grounding as a contributor to your woes . . .
but let us look elsewhere first.
Q: Are your fuel level sensors supplied with
ANY claim of having been tested for compatibility
with aircraft environments? Can you give us a link
to download the manufacturer's data, marketing
hype and installation manuals?
Your problems that manifest with your LED lighting
products are most likely associated with radiation
from their switch-mode power supplies. Some years
ago, we offered a filter kit that tamed a popular
switch mode supply in a DIY lighting kit. Sales
volumes went way down on that product and it was
discontinued.
I have a filter that was crafted for a customer
some years ago . . . to mitigate conducted noises
that were not accounted for in the initial design
goals.
[img]cid:.1[/img]
I can send you one of these to try on your landing light.
If it proves adequate/useful, I'll throw some more together
and we can sprinkle them around on the other LED antagonists.
This is a cut-n-try approach . . . given the limitations of
diagnostics-by-wire . . . it's about the best we can do . . .
If you'd like to try this, shoot me a mailing address . . .
Bob . . .
| | - The Matronics AeroElectric-List Email Forum - | | | Use the List Feature Navigator to browse the many List utilities available such as the Email Subscriptions page, Archive Search & Download, 7-Day Browse, Chat, FAQ, Photoshare, and much more:
http://www.matronics.com/Navigator?AeroElectric-List |
|
| Description: |
|
| Filesize: |
78.18 KB |
| Viewed: |
3407 Time(s) |

|
| Description: |
|
| Filesize: |
177.58 KB |
| Viewed: |
3407 Time(s) |

|
|
|
| Back to top |
|
 |
curts63
Joined: 04 Dec 2013 Posts: 30 Location: New Ringgold, PA
|
Posted: Wed Feb 25, 2015 7:08 am Post subject: Re: Having several issues with my installation |
|
|
I'm ashamed and embarassed by my doodling, but here is a sketch of what I have. Remember, I don't know the correct symbols, terms, or designs that engineers should use. This can be the drawing you hang around the office for others to mock.
The one drawing shows the basic wiring idea. The battery is grounded to the firewall, starter, and both ground blocks. The power goes from the battery to the starter solenoid, also from the battery to the shunt- then splits to the power panel with built in switches and some type of self resetting fuses to the relay which provides power to the other bus. You'll have to excuse my not remembering the exact way the relays are wired, but it does work for battery backup. The alternator has two wires to the regulator, the regulator is grounded to the firewall and feeds back to the battery (there is a sense wire that turns on/off the regulator).
The "main bus" has actual circuit breakers mounted to a copper strip. These power the avionics , such as radios, transponder, GDL, GPS, ADHRS, and one EFIS.
I believe all shielded wires used are grounded on the backshell and floating on the other ends. Regular power and ground for individual units are not shielded. The interconnect for the Garmin items use a canbus or RS232, with twisted and shielded pairs.
http://centroidproducts.com/3wire.htm
this is where the fuel probes come from. The power, ground and sense connect to the GEA-24 and use 5v reference.
If you have any other questions, please ask and I'll attempt to answer the best I can. If someone feels they can help, feel free to ask for my cell number and we can talk to better understand.
Thanks,
Curt
| | - The Matronics AeroElectric-List Email Forum - | | | Use the List Feature Navigator to browse the many List utilities available such as the Email Subscriptions page, Archive Search & Download, 7-Day Browse, Chat, FAQ, Photoshare, and much more:
http://www.matronics.com/Navigator?AeroElectric-List |
|
| Description: |
|
 Download |
| Filename: |
schematic 2.pdf |
| Filesize: |
44.35 KB |
| Downloaded: |
425 Time(s) |
| Description: |
|
 Download |
| Filename: |
schematic 1.pdf |
| Filesize: |
69.7 KB |
| Downloaded: |
440 Time(s) |
|
|
| Back to top |
|
 |
|
|
You cannot post new topics in this forum You cannot reply to topics in this forum You cannot edit your posts in this forum You cannot delete your posts in this forum You cannot vote in polls in this forum You cannot attach files in this forum You can download files in this forum
|
Powered by phpBB © 2001, 2005 phpBB Group
|